Telegram
0


















Артикул: Н134722
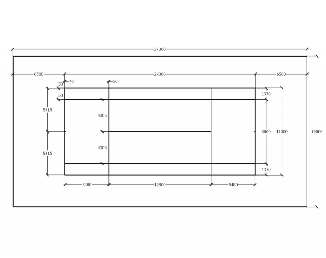
Корт для тенниса TORUDA T-1 HARD (37х19, игровое поле 24х11)
| Выберите вариант |
|---|
| Базовая |
| Стандарт |
| Расширенная |
| Про |
Теннисный корт «Торуда 5» – это спортивная площадка, предназначенная для игры в большой теннис. Теннисный корт оснащён всем необходимым для комфортных тренировок и соревнований.
Теннисный корт состоит из следующих элементов:
1. Калитка «Преграда Эко» высотой 2 метра, выполненная в зелёном цвете (RAL 6005). В наличии 2 штуки.
Высота: 2 метра.
Ширина проёма: 1 метр.
Высота калитки: 2 метра
Покрытие: оцинкованное с полимерным порошковым покрытием.
2. **Столбы 80×80×2 мм с заглушками h=6000
Адрес пункта выдачи в Уфе: ул. Кировоградская, 33.
Теннисный корт Торуда T-1 HARD состоит из:
1. Калитка ПРЕГРАДА Эко высота 2000 мм. зеленый RAL 6005 (2 шт.)
2. Столб оцинкованный с полимерным покрытием 80х80х2,0 / 5,0
3. Панель Преграда Стандарт пруток Ø 3,8мм или Ø 5мм, яч. 55х200, Ш2530мм h2030мм Zn+ПП (88 шт.)
4. Комплект крепления №5 / Zn+ПП
5. Скоба для соединения панелей
6. Стойки для большого тенниса стационарные алюминиевые 100х120 (1 шт.)
7. Сетка для большого тенниса 12,8х1,07 м, яч. 40х40 мм, оверлок с 4-х сторон, с тросом Ø 2,6
8. Акриловое покрытие TORUDA HARD с укладкой (Синяя) (264 м²)
9. Акриловое покрытие TORUDA HARD с укладкой (Зелёная) (439 м²)
10. Разметка на бесшовное покрытие 50 мм 1 п.м. (Белая) (120 п.м.)
11. Разметка на бесшовное покрытие 70 мм 1 п.м. (Белая) (30 п.м.)
12. Скамейка парковая SF-S5 (2 шт.)
Длина: 150 см
Ширина: 50 см
Высота: 86 см
13. Урна парковая SF-U2 (1 шт.)
Длина: 38 см
Ширина: 38 см
Высота: 60 см
14. Велопарковка Оптима VP1 (1 шт.)
Длина: 110 см
Количество мест: 4
15. Трибуна сборно-разборная 2-х рядная на 12 мест (с навесом из поликарбоната) (1 шт.)
Длина: 300 см
Ширина: 180 см
Высота: 240 см
16. Сетка заградительная 100х100 мм, нить 3,0 мм, квадратная ячейка (капрон)
Рым гайка + рым болт - 42 шт.
Трос 3мм - 2 бухты
Зажим для троса - 42 шт
Талреп - 8 шт
17. Светильник QUASAR-HE2-200 VCSO-PR04.12-200-T2-NW-U
18. Светильник QUASAR-HE2-200 VCSO-PR04.12-200-D60-NW-U
19. Комплект: Опора торшерная НФК (8м г.ц)., с закладной (1,5м) и кронштейном, (RAL 9011)
